Язьік Мова
Мова сайту:

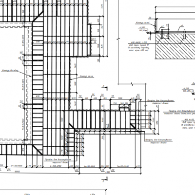
Розробка проектної документації

Розробка проектної документації

Для великих та складних терас ми рекомендуємо розробку проектної документації

Проектна документація скоротить ваші витрати на матеріали та роботи, а також забезпечить максимальну довговічність вашої майбутньої тераси.

Така розробка актуальна для різнорівневих терас, терас з різним напрямком укладання дощок, терас з великими різноспрямованими ухилами основи (наприклад: дахові тераси), терас на металевому каркасі та терас великої площі

 

Характеристики

Опис

Характеристики

Наявність:
Немає на складі
В наявності
Артикул:
2613
Країна виробник:
Україна

Опис

Для великих та складних терас ми рекомендуємо розробку проектної документації.

Проектна документація скоротить ваші витрати на матеріали та роботи, а також забезпечить максимальну довговічність вашої майбутньої тераси.

Така розробка актуальна для різнорівневих терас, терас з різним напрямком укладання дощок, терас з великими різноспрямованими ухилами основи (наприклад: дахові тераси), терас на металевому каркасі великої площі.

Проектна документація включає

  • Графічні матеріали:

- схеми укладання лаг каркасу терас;

- схеми розкладання терасних дощок

- схеми розміщення регульованих опор

- креслення металевого каркаса (при необхідності)

- ескізи конструктивного виконання торців тераси (при необхідності)

- ескізи конструктивного виконання зон примикання тераси з навколишніми будівлями, що примикають доріжками, кромками басейнів (при необхідності)

  • Пояснювальну записку, що містить короткий опис конструкції тераси та її елементів, опис застосовуваних у конструкції тераси матеріалів та захисних покриттів
  • Економічну частину у вигляді калькуляції на виготовлення тераси зі структурою вартості у розрізі матеріалів та робіт